Image

Nick Lal

778-389-6661

Image

Noni Mihilli

778-549-9029

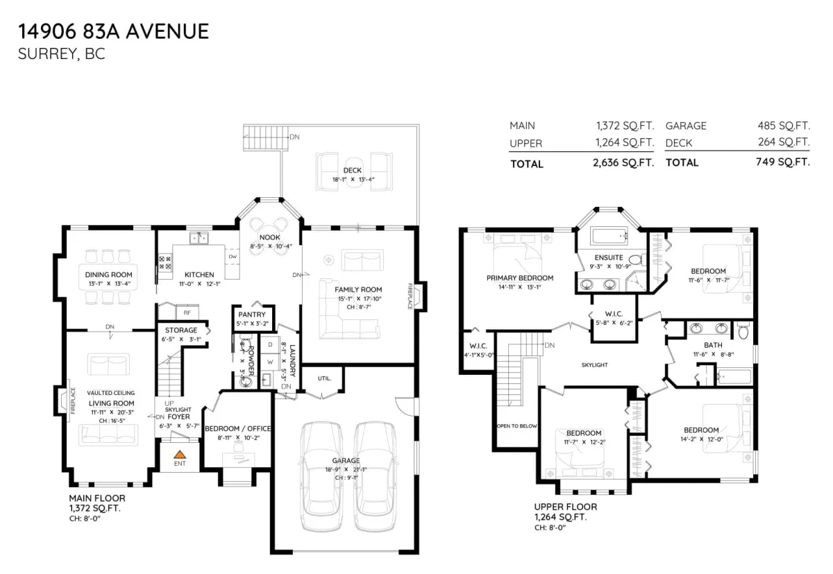
14906 83a Ave, Surrey, BC V3S 7S1, Canadá